首页
|
我的自装网
|
发布招标
欢迎来到中国最专业的装修平台!
免费注册
登录
西安
[切换城市]
[热门]
上海
北京
合肥
深圳
苏州
杭州
[A-C]
北京
成都
长沙
重庆
长春
安庆
[D-H]
大连
广州
杭州
合肥
海口
哈尔滨
东莞
福州
佛山
贵阳
桂林
呼和浩特
海口
[J-R]
昆明
宁波
南京
青岛
九江
济南
兰州
拉萨
南宁
南昌
青岛
[S-Z]
上海
深圳
苏州
石家庄
天津
太原
无锡
武汉
厦门
西安
郑州
沈阳
无锡
乌鲁木齐
威海
西宁
银川
宜昌
烟台
郑州
珠海
如:装修公司名称
首页
发布招标
所有招标
装修日记
装修公司
套餐装修
装修效果图
优惠券
团装
设计工作室
装修施工队
装修公司
说明:
您的位置:
首页
>
装修效果
>
简约
>
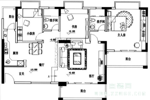
简约大方而又不失温馨
案例标签:
西安市幸福公寓两室一厅
枫叶装饰工程有限公司
最新装修日记
关于我们
|
联系我们
|
意见反馈
|
相关法律
|
装修投诉
|
网站地图
|
友情链接
Copyright 2012 zzw66.com 版权所有 沪ICP备11031659号-3